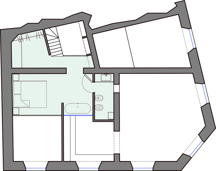
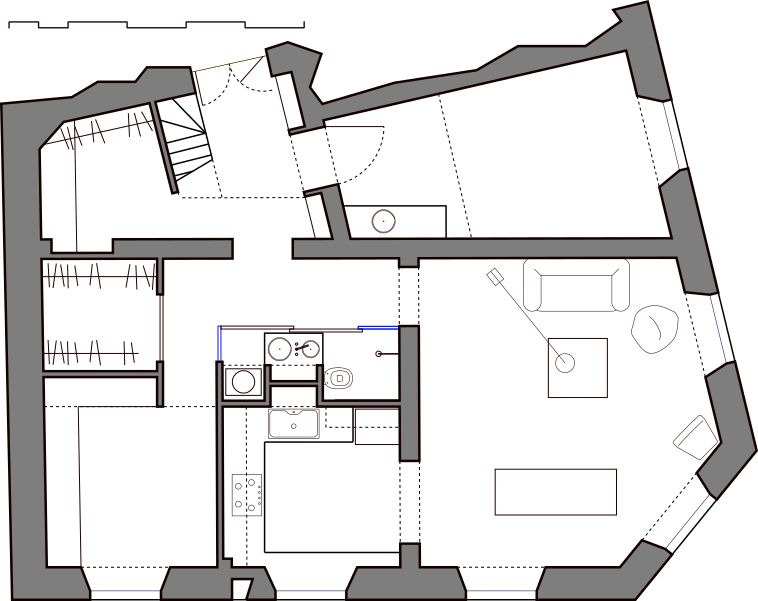
Refurbishment of an apartment.
Q.E.D. house
| location | Rome, Italy |
|---|---|
| Started | 2001 |
| Finished | 2001 |
| Role | architect in charge |
| Client | Private |
| Type | residential; interiors; refurbishment |
| Dimension | 80 sqm |
| Phase | schematic project; final plans; construction documents; artistic supervision |
| Status | completed |
| Team | Andrea Ricci with Elly Nagaoka |